✨ BIỆT THỰ HIỆN ĐẠI 3 TẦNG – KIỆT TÁC KHÔNG GIAN SỐNG XANH GIỮA LÒNG ĐÔ THỊ ✨
Trong xu hướng phát triển mạnh mẽ của kiến trúc hiện đại, những công trình không chỉ dừng lại ở việc “đẹp” mà còn phải đáp ứng được nhu cầu sống tiện nghi, thoáng đãng và gần gũi thiên nhiên. Mẫu biệt thự 3 tầng dưới đây chính là một minh chứng hoàn hảo cho sự kết hợp hài hòa giữa thẩm mỹ – công năng – chi phí, mang đến một không gian sống lý tưởng cho gia đình hiện đại.
🏡 TỔNG QUAN CÔNG TRÌNH
Công trình được xây dựng với quy mô 3 tầng, diện tích mỗi sàn 96m², tổng diện tích sử dụng lên đến khoảng 350m². Đây là mức diện tích rất lý tưởng để bố trí đầy đủ các không gian sinh hoạt cho gia đình từ 4–6 người, đồng thời vẫn đảm bảo sự rộng rãi, thông thoáng và riêng tư cần thiết.
Điểm đặc biệt của công trình không chỉ nằm ở diện tích mà còn ở sự tối ưu chi phí. Với tổng mức đầu tư khoảng 2,3 tỷ đồng, ngôi nhà mang lại giá trị vượt trội so với chi phí bỏ ra, vừa đảm bảo tính thẩm mỹ cao, vừa đáp ứng đầy đủ công năng sử dụng lâu dài.
🌿 NGÔN NGỮ KIẾN TRÚC HIỆN ĐẠI – TINH GIẢN NHƯNG ĐẲNG CẤP
Ngay từ cái nhìn đầu tiên, công trình gây ấn tượng mạnh bởi hình khối kiến trúc vuông vức, rõ ràng và dứt khoát. Đây là đặc trưng nổi bật của phong cách hiện đại – đề cao sự đơn giản nhưng tinh tế trong từng đường nét.
Gam màu chủ đạo trắng – be được lựa chọn nhằm tạo cảm giác nhẹ nhàng, thanh lịch và sang trọng. Màu sắc này không chỉ giúp ngôi nhà luôn giữ được vẻ đẹp theo thời gian mà còn dễ dàng phối hợp với các yếu tố cảnh quan xung quanh như cây xanh, sân vườn.
Hệ thống cửa kính lớn được bố trí xuyên suốt các tầng giúp mở rộng tầm nhìn, tạo cảm giác không gian bên trong như được “nới rộng” ra. Ánh sáng tự nhiên có thể len lỏi vào từng góc nhỏ trong nhà, giúp tiết kiệm điện năng và mang lại cảm giác dễ chịu cho người sử dụng.
🌱 KHÔNG GIAN SỐNG XANH – XU HƯỚNG CỦA THỜI ĐẠI
Một trong những điểm nhấn đáng giá của công trình chính là việc đưa yếu tố thiên nhiên vào không gian sống. Từ khu vực sân vườn tầng trệt đến các ban công và sân thượng, cây xanh được bố trí hợp lý, tạo nên một môi trường sống trong lành và thư giãn.
Ban công rộng rãi ở mỗi tầng không chỉ là nơi đón gió, đón nắng mà còn là không gian lý tưởng để trồng cây, thưởng trà hoặc nghỉ ngơi sau một ngày làm việc. Sự xuất hiện của cây xanh giúp cân bằng lại nhịp sống đô thị, mang đến cảm giác yên bình và gần gũi.
Không gian sân trước được thiết kế thoáng đãng, có thể tận dụng làm nơi để xe hoặc khu vực sinh hoạt ngoài trời cho gia đình. Đây cũng là khoảng đệm giúp giảm tiếng ồn và bụi từ bên ngoài, giữ cho không gian bên trong luôn sạch sẽ, dễ chịu.
🧩 TỐI ƯU CÔNG NĂNG – PHÙ HỢP MỌI NHU CẦU SINH HOẠT
Với tổng diện tích sử dụng khoảng 350m², công trình được bố trí công năng một cách khoa học và hợp lý:
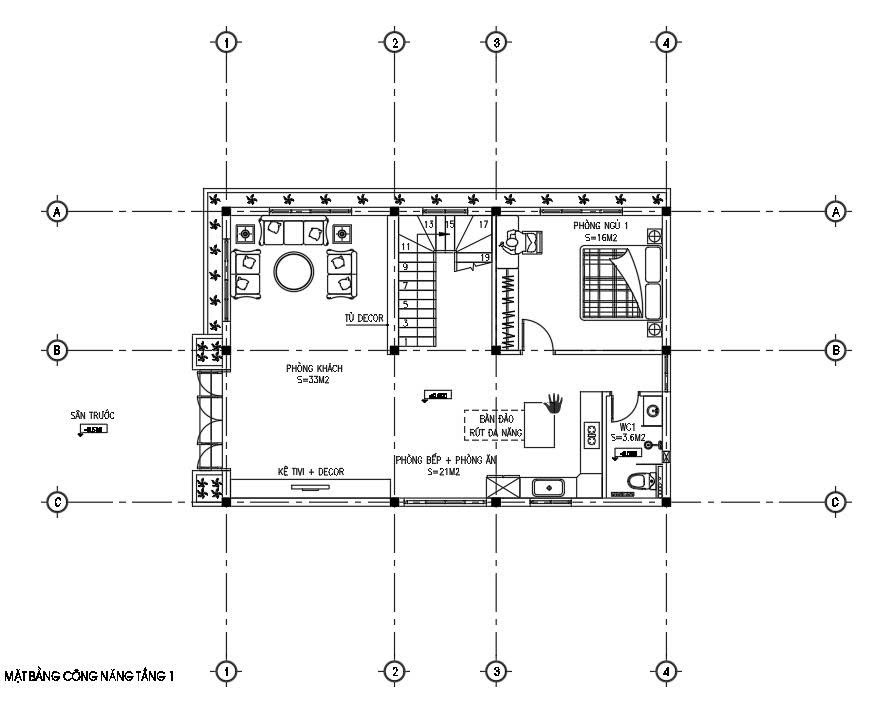
- Tầng 1: Khu vực phòng khách rộng rãi, kết nối với bếp và phòng ăn theo không gian mở, tạo sự liền mạch và thông thoáng. Ngoài ra còn có phòng ngủ dành cho người lớn tuổi và nhà vệ sinh chung.

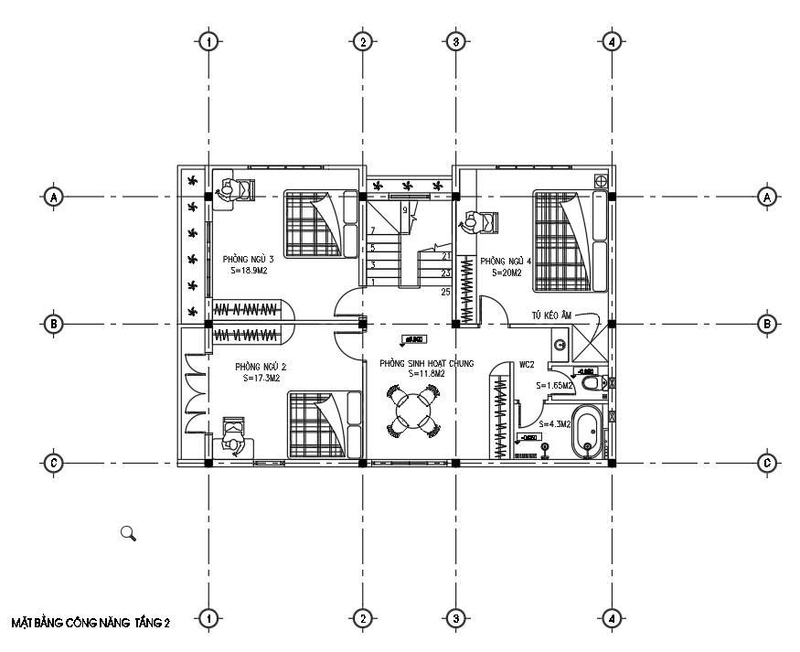
- Tầng 2: Bố trí các phòng ngủ chính, mỗi phòng đều có cửa sổ hoặc ban công riêng, đảm bảo ánh sáng và sự riêng tư.

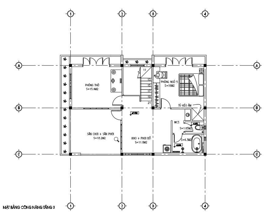
- Tầng 3: Không gian phòng thờ, phòng sinh hoạt chung và sân thượng – nơi lý tưởng để thư giãn hoặc tổ chức các buổi tụ họp gia đình.

Cách bố trí này không chỉ đảm bảo sự tiện nghi trong sinh hoạt mà còn giúp tối ưu diện tích sử dụng, tránh lãng phí không gian.
💡 GIẢI PHÁP ÁNH SÁNG & THÔNG GIÓ TỰ NHIÊN
Một trong những yếu tố quan trọng làm nên chất lượng sống của công trình chính là hệ thống thông gió và chiếu sáng tự nhiên. Với việc sử dụng nhiều cửa kính lớn, kết hợp cùng các khoảng hở hợp lý, không khí có thể lưu thông dễ dàng giữa các không gian.
Ánh sáng tự nhiên không chỉ giúp tiết kiệm năng lượng mà còn mang lại lợi ích cho sức khỏe, tạo cảm giác thoải mái và nâng cao chất lượng cuộc sống. Đây là yếu tố đặc biệt quan trọng trong thiết kế nhà ở hiện đại.
🎯 CHI PHÍ HỢP LÝ – GIÁ TRỊ LÂU DÀI
Với tổng chi phí xây dựng khoảng 2,3 tỷ đồng cho một công trình 3 tầng diện tích gần 350m², đây được xem là mức đầu tư rất hợp lý trong phân khúc biệt thự hiện đại.
Chi phí này đã bao gồm các hạng mục cơ bản như xây dựng phần thô, hoàn thiện cơ bản và hệ thống điện nước. Với mức đầu tư này, gia chủ hoàn toàn có thể sở hữu một không gian sống tiện nghi, thẩm mỹ và bền vững theo thời gian.
Quan trọng hơn, thiết kế hiện đại giúp công trình không bị lỗi thời, giữ được giá trị lâu dài cả về mặt sử dụng lẫn đầu tư.
🏠 KHÔNG GIAN SỐNG – HƠN CẢ MỘT NGÔI NHÀ
Ngôi nhà không chỉ đơn thuần là nơi để ở, mà còn là nơi gắn kết các thành viên trong gia đình, nơi lưu giữ những khoảnh khắc đáng nhớ. Với thiết kế mở, nhiều ánh sáng và cây xanh, công trình mang đến một môi trường sống tích cực, giúp cân bằng giữa công việc và cuộc sống.
Mỗi góc nhỏ trong nhà đều được chăm chút để tạo nên sự thoải mái tối đa cho người sử dụng. Từ phòng khách sang trọng, phòng ngủ ấm cúng đến ban công xanh mát – tất cả đều góp phần tạo nên một tổng thể hài hòa và đáng sống.
📈 XU HƯỚNG LỰA CHỌN NHÀ Ở HIỆN NAY
Hiện nay, xu hướng xây dựng nhà ở không còn chỉ tập trung vào diện tích lớn hay chi phí cao, mà hướng đến sự tối ưu và hiệu quả. Những công trình như mẫu biệt thự này chính là lựa chọn lý tưởng cho những gia đình muốn:
- Sở hữu không gian sống hiện đại, tiện nghi
- Tối ưu chi phí xây dựng
- Gần gũi thiên nhiên, tốt cho sức khỏe
- Đảm bảo giá trị lâu dài
Đây cũng là xu hướng phát triển bền vững trong tương lai, khi con người ngày càng quan tâm đến chất lượng sống hơn là hình thức bên ngoài.
📩 LIÊN HỆ TƯ VẤN & THI CÔNG
Nếu bạn đang tìm kiếm một mẫu nhà đẹp, hiện đại, tối ưu chi phí và phù hợp với nhu cầu sử dụng thực tế, thì đây chính là lựa chọn đáng cân nhắc.
Chúng tôi cung cấp dịch vụ:
✔ Thiết kế kiến trúc theo yêu cầu
✔ Thi công trọn gói chìa khóa trao tay
✔ Tư vấn tối ưu chi phí xây dựng
✔ Cam kết chất lượng và tiến độ
👉 Liên hệ ngay để được tư vấn chi tiết và sở hữu không gian sống lý tưởng cho gia đình bạn!







































Đánh giá
Chưa có đánh giá nào.